Skip to product information
1 of 2

D-COR

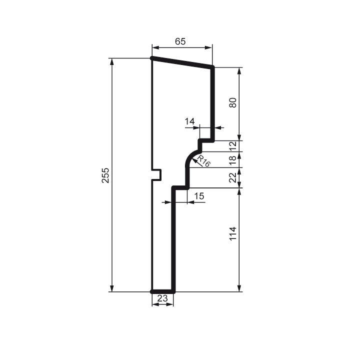
Facade moulding MC143

Facade moulding MC143

Regular price €52,30 EUR
Regular price Sale price €52,30 EUR
Sale Sold out
Taxes included.
Quantity
fönster
View full details